Group Project Interim Urbanism
-
Lucas Greco,
M.Arch. 2016
Stuart Pidcock, M.Arch. 2016
Class
ARCH 4102/5116 Design VI Option Studio (Spring 2015)Instructor
David Moon
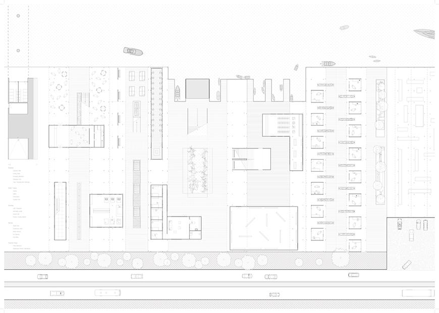
Through the transformation of a derelict harbor in Hong Kong's Kowloon Bay, this community oriented, ground-up approach to urbanism and its architectural impact is an exercise in flexibility and temporality as much as it is a reaction to the "Developer's Playground" attitude of contemporary development in the city.
By utilizing the construction waste of the neighboring commercial/housing development on the former Kai Tak Airport site, the project aims to reimagine the inevitable output of construction and transform it into useable architectural infrastructure for community gathering and much needed artistic and creative space for the city.
With simple sheds acting as "spines" into which programmatic elements may be inserted over time, the open-ended intervention transforms reclaimed material into shelter, space, and place for various social interactions. The long docks extending out into the water with interspersed community moments allows for both a temporal and physical flexibility while treading lightly on the already overdeveloped city fabric.